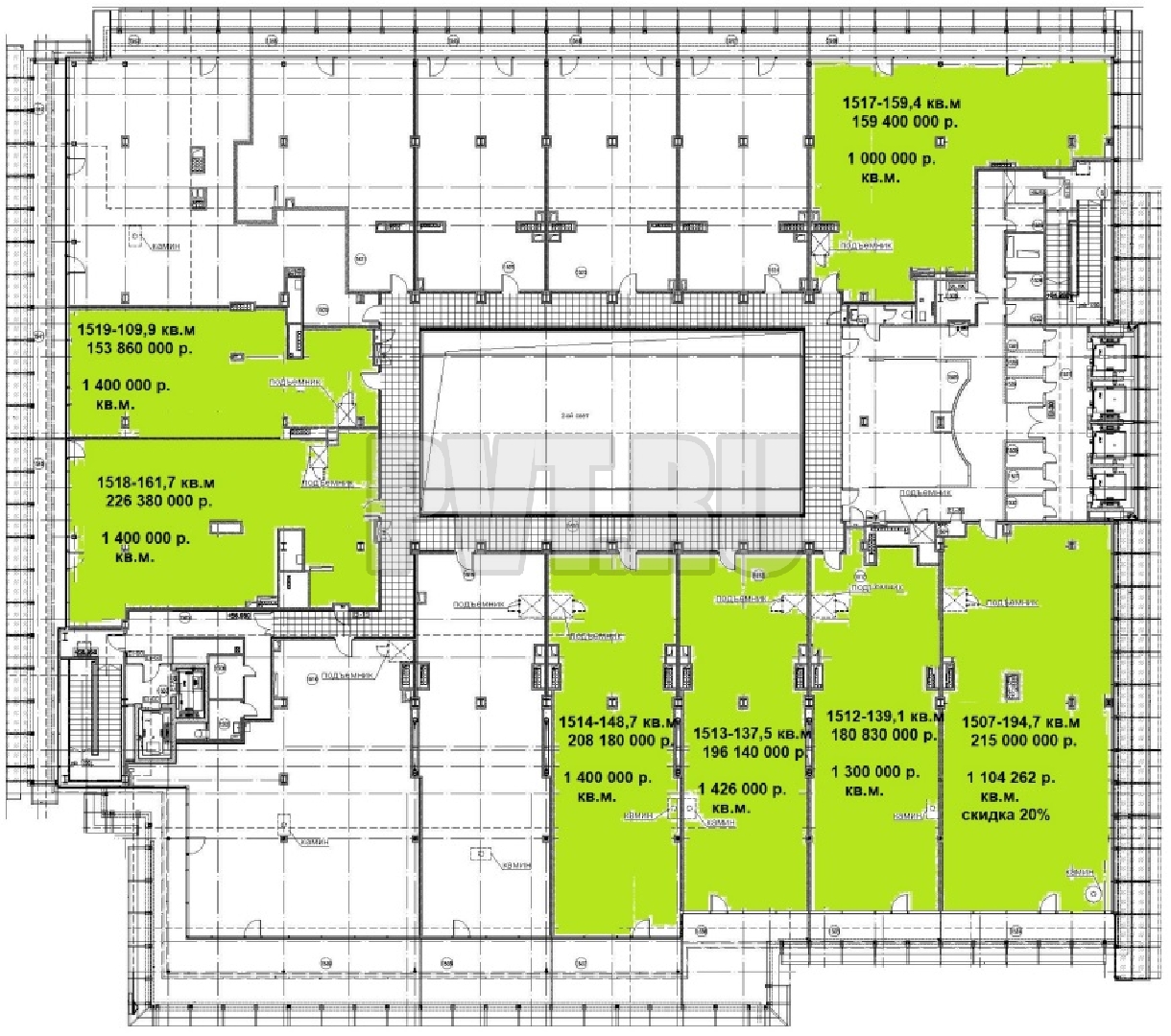
Апартаменты, 137,5 м², кабинетная планировка, требуется отделка

196 140 000 ₽

1 426 472,73 ₽/м²

Связаться с нами

Коммерческие условия

Налогообложение

НДС

A

Класс

7710

Налоговая

2019

Год постройки

34 748 м²

Общая площадь

12

Количество этажей

Вы можете записаться на просмотр интересующей вас площади